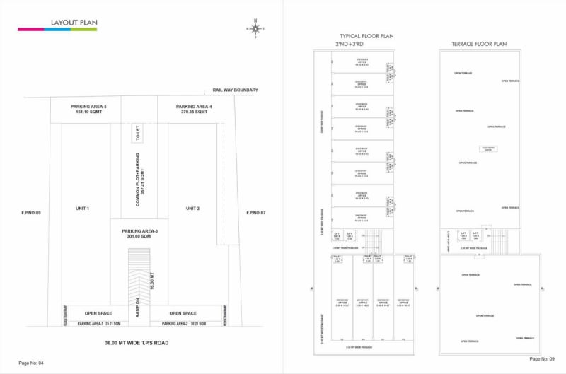
Narayan Hub is a commercial real estate project developed by Narayan Infra, strategically located at Besides Anand Jilla Sevasadan & Collector Office, Anand-sojitra Road, Anand, Anand, 388001. This RERA-registered property (Registration No: PR/GJ/ANAND/ANAND/Anand VallabhVidhyanagar Karmsad Urban Development Authority/CAA15800/060925/151028). Unit 1 ( Shops & Offices = 44 ) Unit 2 ( Shops & Offices = 48 ) Total 92 Commercial Units
The project is professionally designed by Riya Mayankkumar Shah and engineered by Ahmedhusein Yusufbhai Chhipa, ensuring quality construction and adherence to all regulatory standards. For more information about this property, interested buyers can contact Narayan Infra directly at 9099957722.









